ШКОЛА МУЗЫКИ В КРАСНОГОРСКЕ
2022/ МОСКВА/ 113,5м²
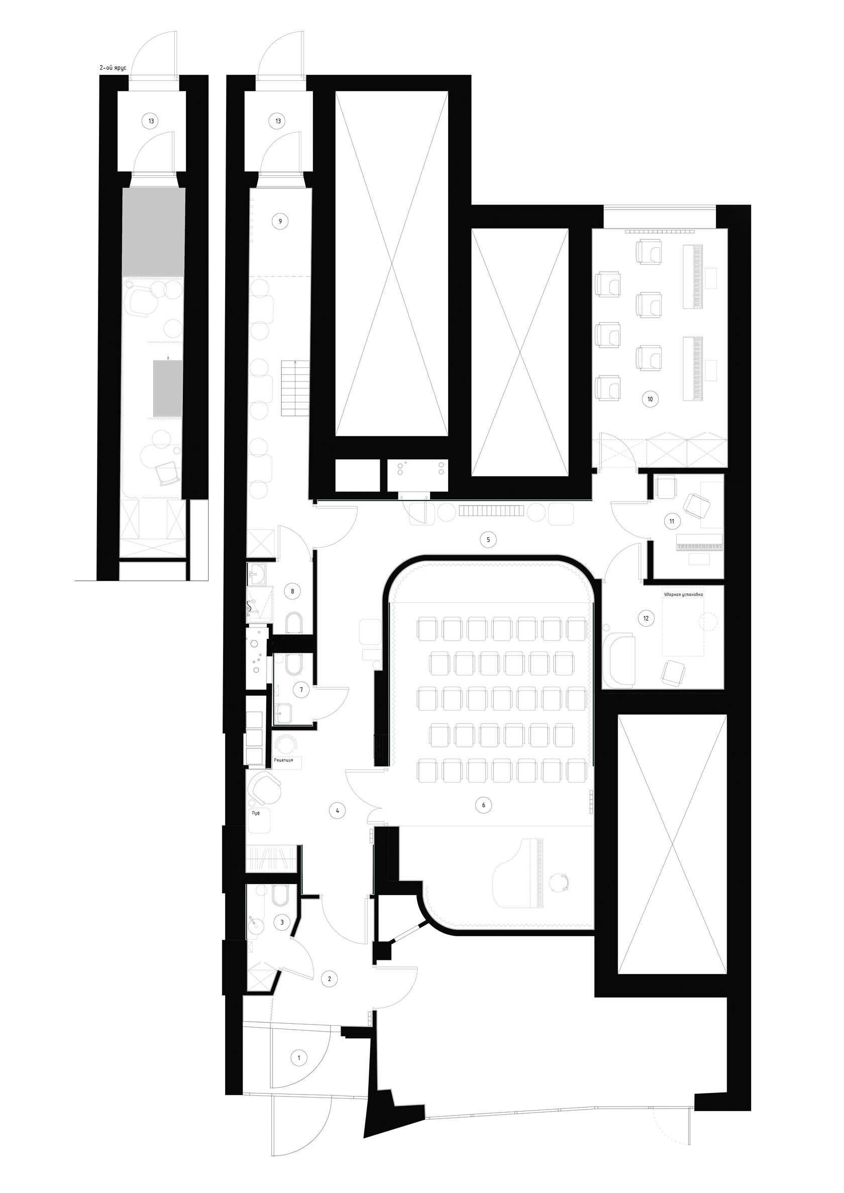
Частная музыкальная школа расположена по адресу Красногорский бульвар д.23. Задача была организовать такую среду для творчества и репетиций, в которой было бы комфортно и интересно как детям так и взрослым. У нас получилось сделать запоминающееся функциональное и вдохновляющее пространство за счет простых форм и сочетания базовых цветов и яркого акцента стен.